Coming soon….
Full refurbishment and updating of this beautiful mews house tucked away in a conservation area in the heart of London.
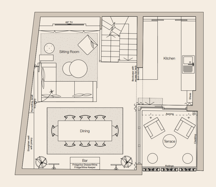
The studio is working on a stunning classic mews house requiring full refurbishment to all areas with careful consideration for the external character and features.
The brief is to transform the house into a modern day pied a Terre to accommodate entertaining guests as well as accommodating our client’s art collection and love of vintage cars. A calm, welcoming refuge from city life.


The interior incorporates warmth in layers and natural textures in the soft furnishings and dark bronze and timber accents to the joinery pieces.


Keeping the character of the mews intact whilst adapting the interior for comfortable contemporary living. Bringing significant light into the central hallway and surrounding living spaces and terraces.

